https://goldsteinproperty.com/
Home
For Lease
358 Roswell Street
Suite 1140
Suite 2110
East Marietta Shopping Center
1496 Roswell Rd.
67-87 North Park Square
25 Atlanta Street
Suite D
Suite F
Suite G
58 South Park Square
Suite F
Suite I
Suite R
Info
Contact Info
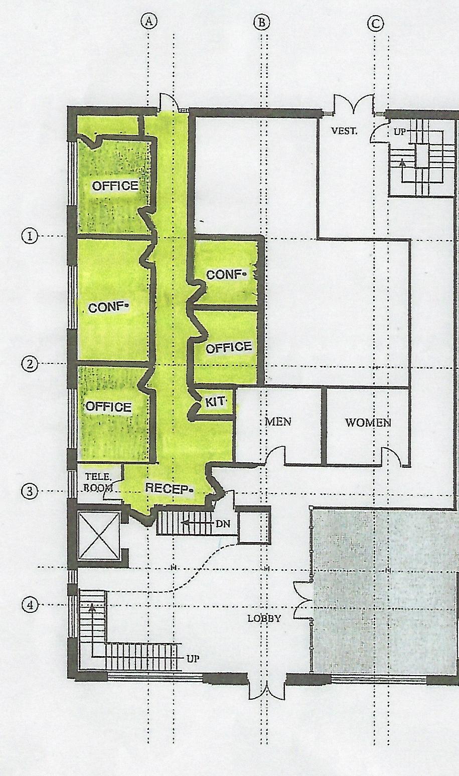
Suite 1140
Suite 1140 Floor Plan
Return to For Lease